- トップ
- 物件情報(一覧)
- 売買(倉庫・事務所・店舗)一覧
- 売事務所・倉庫
宮崎市密着のトライアップ不動産が取り扱う不動産物件の詳細ページです。物件詳細に加え、実際のお写真なども掲載しております。ご興味のある方には、より詳しい内容をご案内いたしますので、ぜひお気軽に当社までお問い合わせください。
売事務所・倉庫
| 所在地 | 宮崎市大字島之内永池9274番1 | ||
|---|---|---|---|
| 価格 | 9500万円 | ||
| 交通/最寄駅 | ニュータウン住吉南バス停徒歩6分 | ||
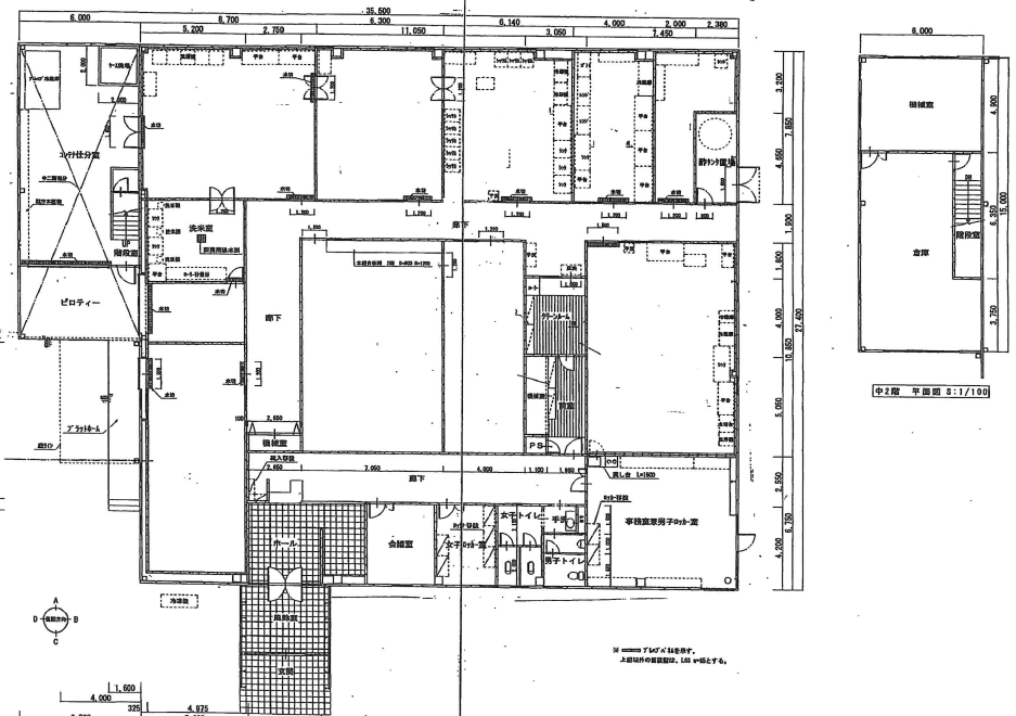
| 間取り/敷地面積 | 3924.12㎡(1187.04坪) | ||
| 築年月/構造 | 2000年7月 築26年 | ||
| 種目 | 事務所・倉庫 | ||
| 建物面積 | 延べ面積 1124.87㎡ (340.27坪) | ||
| 駐車場 | 50台以上 | 接道 | 西側5m 北側3m |
| 都市計画 | 市街化調整区域(一部既存宅地) | ||
| 建ぺい率/容積率 | 70% 200% | 用途地域 | 指定なし |
| 引渡し時期 | 相談 | 取引態様 | 一般媒介 |
| 担当者 | 山下賀也 | ||
| 現状 | 一部持主使用中 | 引渡時期 | 相談 |
| 取引態様 | 一般媒介 | ||





